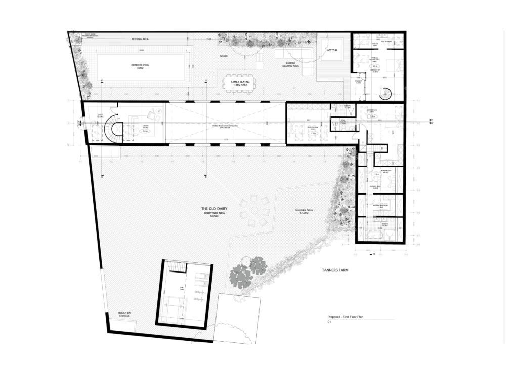
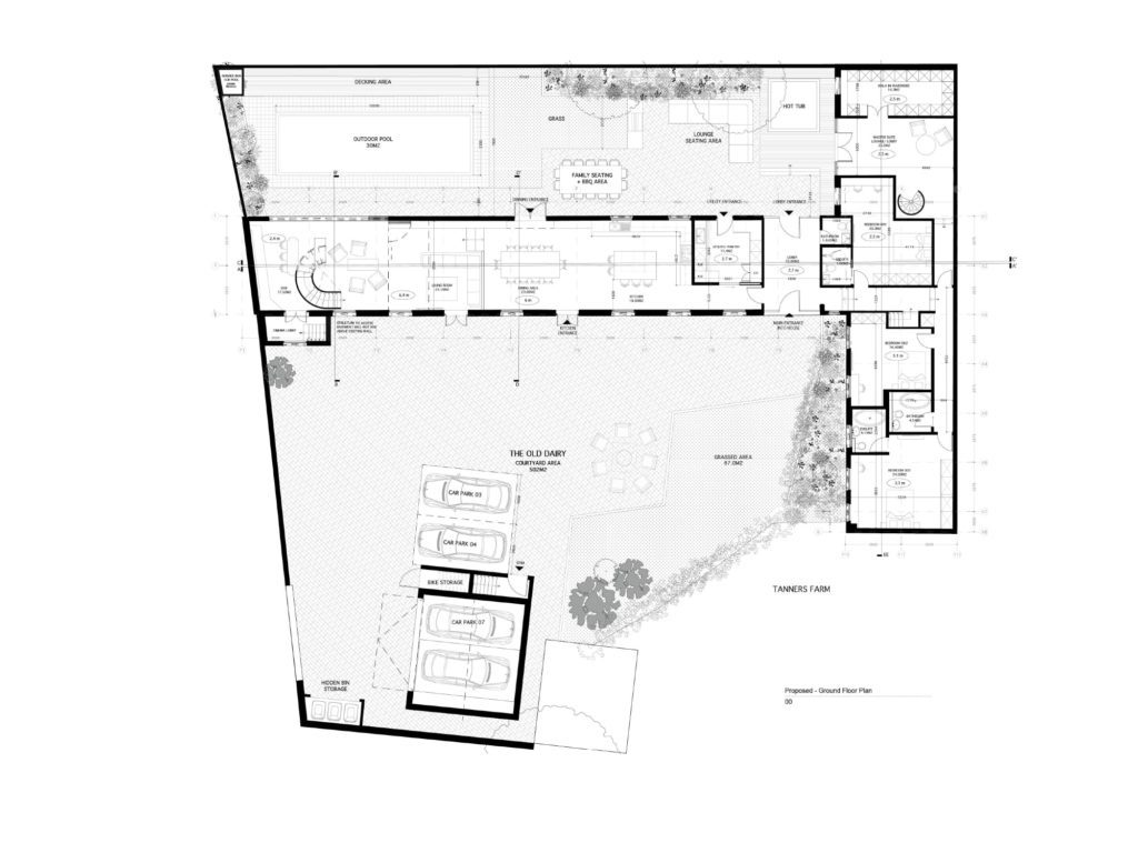
A thoughtful example of landscape-integrated architecture, the design doubles the floor area while carefully preserving the natural setting and maximising key views.

The future of living is shaped by a combination of factors. Elements surrounding the nature of life require a balance between an active, fast-paced lifestyle and one of tranquillity. The Studio believes a home should encompass all of these qualities to create a space that is timeless in both its character and adjustable to the ever-changing speed of living. Our clients came to us with the desire to expand their farmhouse to accommodate a merging of families and to create a home fit for multiple purposes. The conversation and brief developed as the Studio explored ways to bring forth value to the family’s lifestyle, add flexibility to spaces, become an example of landscape-integrated architecture and incorporate layers of privacy for this mature multigenerational household.


It was essential for the owners to keep as much ground space as possible to hold the existing views onto private amenity. The additional volume was placed via, proposing to raise the roof, create a basement and allow a double floor extension tucked away to the corner of the grounds. By doing so, we created a more flexible floorplan while paying homage to the existing structure and allowing the volume to create a hierarchy to the dwelling. This new footprint grants development to the private and public spaces within the home on an exterior and interior level.




